Phòng Tắm Đối Diện Bếp (Lỗi Thủy Hỏa Bất Dung): Hóa Giải Chuẩn 

Phòng tắm đối diện bếp (lỗi Thủy Hỏa bất dung) là gì?

Phòng tắm đối diện bếp (lỗi Thủy Hỏa bất dung) là một trong những lỗi đại kỵ phong thủy nhà ở mà nhiều gia đình Việt vô tình mắc phải. Nếu bạn từng băn khoăn vì căn nhà mình gặp phải tình huống này, hãy cùng FengShui tìm hiểu thật kỹ: Tại sao đây là lỗi phong thủy nghiêm trọng, tác động cụ thể ra sao, có cách nào hóa giải triệt để mà không phải đập phá? 

Ngoài ra, bài viết cũng sẽ phân tích các quan niệm hiện đại, những hiểu lầm thường gặp và chia sẻ kinh nghiệm, giúp bạn vững tin xử lý mọi vấn đề liên quan đến bố trí phòng tắm và bếp.

Phòng tắm đối diện bếp (lỗi Thủy Hỏa bất dung) là gì?

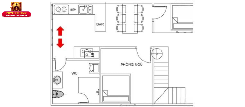
Phòng tắm đối diện bếp là hiện tượng hai không gian này nằm trực diện nhau trong một đường thẳng, khi mở cửa phòng tắm sẽ nhìn thẳng sang bếp hoặc ngược lại. Trong phong thủy, đây được gọi là lỗi Thủy Hỏa bất dung – nghĩa là nước và lửa xung khắc, không thể cùng tồn tại hài hòa.

Ý nghĩa phong thủy của Thủy và Hỏa trong nhà ở

Phong thủy truyền thống quan niệm, bếp đại diện cho Hỏa khí (lửa, năng lượng, tài lộc, sức khỏe), còn phòng tắm lại mang năng lượng Thủy (nước, xả trôi, thanh lọc, bài tiết). Khi hai khu vực này đặt đối diện, dòng khí Hỏa và Thủy xung khắc, gây ra các tác động tiêu cực về sức khỏe, tài lộc, hòa khí trong gia đình.

Xem Thêm:  Vật Phẩm Phong Thủy Trấn Sát Cửa Chính: Bảo Vệ Không Gian Sống

Các biểu hiện thường gặp khi mắc lỗi Thủy Hỏa bất dung

  • Gia đình dễ bất hòa, mâu thuẫn nhỏ hóa lớn
  • Sức khỏe thành viên thường xuyên bị ảnh hưởng: cảm cúm, đau bụng, mất ngủ
  • Tiền bạc dễ thất thoát, làm ăn khó thuận lợi, tài lộc “chảy ra ngoài”
  • Tâm trạng bất an, dễ chán nản hoặc thiếu động lực

Thực tế, nhiều gia chủ chỉ nhận ra vấn đề này khi cuộc sống gặp trục trặc liên tục mà không rõ nguyên nhân. FengShui đã từng tư vấn cho không ít gia đình gặp tình trạng này – chỉ đến khi bố trí lại không gian hoặc áp dụng các biện pháp hóa giải mới thấy sự thay đổi rõ rệt.

Phòng tắm đối diện bếp (lỗi Thủy Hỏa bất dung) là gì?
Phòng tắm đối diện bếp (lỗi Thủy Hỏa bất dung) là gì?

Tác hại của phòng tắm đối diện bếp: Góc nhìn khoa học & phong thủy

Không chỉ phong thủy, khoa học hiện đại cũng nhìn nhận phòng tắm đối diện bếp là bố cục không tốt cho sinh hoạt và sức khỏe. Dưới đây là các tác động tiêu biểu, dựa trên cả trải nghiệm lẫn nghiên cứu chuyên sâu.

Tác động về mặt phong thủy

Phong thủy cho rằng “Thủy khắc Hỏa” sẽ khiến:

  • Dòng khí tốt của bếp (lửa ấm, hưng vượng) bị nước từ phòng tắm “dập tắt”
  • Năng lượng tài lộc, sức khỏe bị phân tán, gia đạo kém ổn định
  • Khí xấu từ nhà vệ sinh/phòng tắm dễ xâm nhập bếp, ảnh hưởng đến món ăn, nguồn năng lượng vào nhà

Tác động theo khoa học hiện đại

Từ góc độ vệ sinh và kiến trúc, FengShui nhận thấy:

  • Hơi ẩm, vi khuẩn từ phòng tắm có thể lan sang bếp qua luồng không khí, gây mất vệ sinh
  • Mùi hôi/ẩm ướt ảnh hưởng đến không gian nấu nướng, thực phẩm dễ bị nhiễm khuẩn
  • Bếp là nơi lưu giữ năng lượng tích cực, phòng tắm lại mang tính “xả thải”, kết hợp này gây cảm giác không thoải mái, lâu dài dễ ảnh hưởng tâm lý

Một số khách hàng của FengShui từng chia sẻ: “Chỉ cần mở cửa phòng tắm là thấy ngay bếp, cảm giác bất an, nấu ăn cũng không còn vui vẻ.” Đó là minh chứng sống động cho tác động của bố cục này.

Nhận diện các trường hợp điển hình

Có ba trường hợp thường gặp nhất:

  1. Nhà ống, diện tích nhỏ, phòng tắm bố trí ngay sát bếp, cửa đối diện nhau
  2. Căn hộ chung cư, bếp và phòng tắm đối diện trên cùng một hành lang
  3. Nhà cải tạo từ không gian cũ, vô tình tạo thành trục đối diện giữa hai khu vực này
Xem Thêm:  Hóa Giải Phong Thủy Xấu Phòng Ngủ - Đem Lại Giấc Ngủ Ngon

Nếu bạn nằm trong một trong ba trường hợp trên, hãy đọc kỹ các phần tiếp theo để biết cách hóa giải phù hợp.

Tác hại của phòng tắm đối diện bếp: Góc nhìn khoa học & phong thủy
Tác hại của phòng tắm đối diện bếp: Góc nhìn khoa học & phong thủy

Cách hóa giải phòng tắm đối diện bếp (lỗi Thủy Hỏa bất dung) hiệu quả nhất 2025

Khi đã xác định nhà mình phạm lỗi này, điều đầu tiên bạn muốn biết chắc chắn là: “Có cách nào hóa giải mà không cần đập phá hay tốn kém không?” Câu trả lời là CÓ – nếu áp dụng đúng cách, linh hoạt và phù hợp với từng căn nhà. Dưới đây là những giải pháp FengShui đã kiểm nghiệm và khuyên dùng năm 2025.

Thay đổi không gian vật lý (nếu có thể)

Nếu bạn đang xây mới hoặc có thể cải tạo, tốt nhất nên:

  • Dịch chuyển cửa phòng tắm/bếp lệch trục, tránh đối diện trực tiếp
  • Xây vách ngăn hoặc tường lửng, tạo vùng đệm giữa hai không gian
  • Đổi vị trí phòng tắm hoặc bếp nếu diện tích cho phép

Tuy nhiên, không phải ai cũng có điều kiện để làm điều này – đặc biệt với nhà phố nhỏ, căn hộ chung cư.

Sử dụng vật phẩm phong thủy hóa giải

Nếu không thể thay đổi vị trí, FengShui khuyên bạn nên kết hợp các biện pháp sau:

  1. Đặt bình phong, rèm cửa hoặc vách ngăn tạm giữa hai cửa phòng tắm và bếp. Nên chọn màu sắc trung tính, vật liệu nhẹ, dễ tháo lắp.
  2. Treo chuỗi tiền xu Ngũ Đế hoặc gương bát quái (loại lồi) bên ngoài cửa phòng tắm để chặn khí xấu.
  3. Đặt cây xanh phong thủy (như lưỡi hổ, trầu bà, lan ý) ở lối đi giữa hai không gian để trung hòa Thủy – Hỏa.
  4. Sử dụng thảm hoặc tấm dán cửa màu đỏ (Hỏa) cho bếp, màu xanh dương (Thủy) cho phòng tắm để phân tách rõ ràng hai khu vực.

Mỗi giải pháp đều cần lưu ý đến thẩm mỹ và sự hài hòa trong tổng thể ngôi nhà, tránh biến không gian thành “bảo tàng vật phẩm phong thủy” gây phản cảm.

Điều chỉnh thói quen sinh hoạt

Không chỉ phụ thuộc vào vật phẩm, thói quen sống cũng quan trọng không kém:

  • Luôn đóng cửa phòng tắm khi không sử dụng
  • Đảm bảo phòng tắm và bếp luôn thông thoáng, sạch sẽ
  • Thường xuyên xông hương, dùng tinh dầu thanh lọc không khí tại hai khu vực này
Xem Thêm:  Cây Phong Thủy Phòng Bếp - Lựa Chọn Hợp Lý, An Toàn

FengShui từng gặp một gia đình trẻ ở Hà Nội, chỉ bằng cách thay đổi thói quen đóng cửa phòng tắm và thêm một tấm rèm nhẹ, đã cảm nhận rõ rệt sự khác biệt về không khí trong nhà, các thành viên bớt tranh cãi, sức khỏe cải thiện hẳn.

Quan niệm hiện đại về phòng tắm đối diện bếp: Cần thực sự lo lắng?

Có nhiều ý kiến tranh luận về mức độ nghiêm trọng của phòng tắm đối diện bếp, nhất là khi xã hội ngày càng hiện đại, diện tích nhà ở ngày càng thu hẹp. Vậy thực chất có cần quá lo lắng?

Khi nào cần hóa giải triệt để?

  • Nhà có trẻ nhỏ, người lớn tuổi, người thường xuyên ốm vặt
  • Gia đình kinh doanh, cần ổn định tài lộc, tránh thất thoát
  • Khi cảm thấy không khí trong nhà luôn căng thẳng, bất an dù đã cố “tích cực hóa”

Khi nào có thể “bỏ qua”?

  • Đã áp dụng các biện pháp hóa giải cơ bản mà vẫn cảm thấy ổn, không có dấu hiệu bất thường
  • Nhà chỉ dùng tạm thời, chưa có điều kiện cải tạo
  • Khu vực bếp và phòng tắm đều được giữ gìn vệ sinh, ít sử dụng đồng thời

Phong thủy là nghệ thuật sống hài hòa với tự nhiên, không phải mê tín. Điều quan trọng là cảm nhận của bạn và gia đình khi ở trong không gian đó.

Quan niệm hiện đại về phòng tắm đối diện bếp: Cần thực sự lo lắng?
Quan niệm hiện đại về phòng tắm đối diện bếp: Cần thực sự lo lắng?

Câu hỏi thường gặp 

  1. Dùng gương bát quái có thật sự hiệu quả không?

Gương bát quái là vật phẩm phong thủy truyền thống giúp phản xạ khí xấu. Tuy nhiên, nên dùng loại phù hợp, treo đúng vị trí và kết hợp với các biện pháp khác để đạt hiệu quả tối ưu.

  1. Chỉ cần đóng cửa phòng tắm là đủ hóa giải?

Đóng cửa giúp ngăn khí xấu nhưng chưa đủ triệt để. Nên kết hợp thêm vách ngăn, vật phẩm phong thủy, cây xanh hoặc đổi màu sắc để tăng hiệu quả hóa giải.

  1. Nếu phòng tắm đối diện bếp nhưng không cùng một hành lang thì có bị ảnh hưởng không?

Ảnh hưởng sẽ giảm nếu hai cửa không nằm trên cùng một trục thẳng. Tuy nhiên, vẫn nên bố trí thêm vật chắn hoặc điều chỉnh thói quen để yên tâm hơn.

  1. Có nên tự ý dùng vật phẩm phong thủy không?

Nên tham khảo chuyên gia để chọn đúng vật phẩm, tránh phản tác dụng hoặc gây mất cân bằng năng lượng trong nhà.

Lời kết

Phòng tắm đối diện bếp (lỗi Thủy Hỏa bất dung) là lỗi phong thủy phổ biến nhưng hoàn toàn có thể hóa giải linh hoạt, không nhất thiết phải đập phá hay cải tạo lớn. Nếu bạn đang gặp tình huống này, hãy liên hệ với FengShui để được tư vấn miễn phí các giải pháp tối ưu, phù hợp nhất với không gian và nhu cầu của bạn. 

Đừng để những lỗi nhỏ trong bố cục nhà ở làm ảnh hưởng đến hạnh phúc, sức khỏe và tài lộc của gia đình bạn – hãy chủ động điều chỉnh, tận hưởng không gian sống an lành, vượng khí.